Dernière actualité
Bonnes fêtes de fin d’année 2024
Struct’O Plans vous souhaite, à vous et à vos proches, un Joyeux Noël et ses meilleurs voeux pour l’année à venir. Je tiens à remercier chaleureusement tous mes partenaires et clients pour cette année qui vient de s’écouler.
Struct’O Plans vous donne rendez-vous en 2025 pour de nouvelles réalisations!
Réalisations
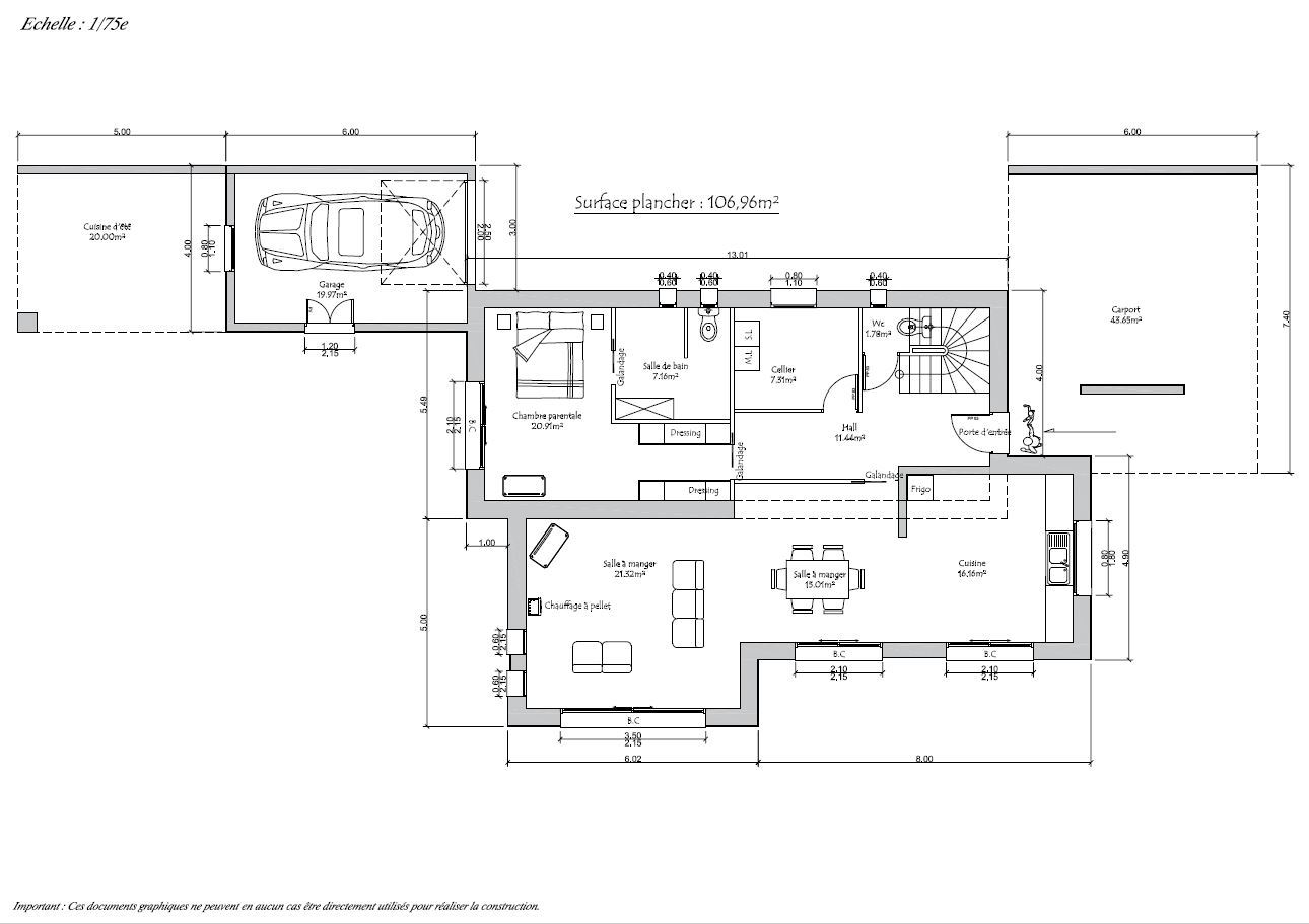
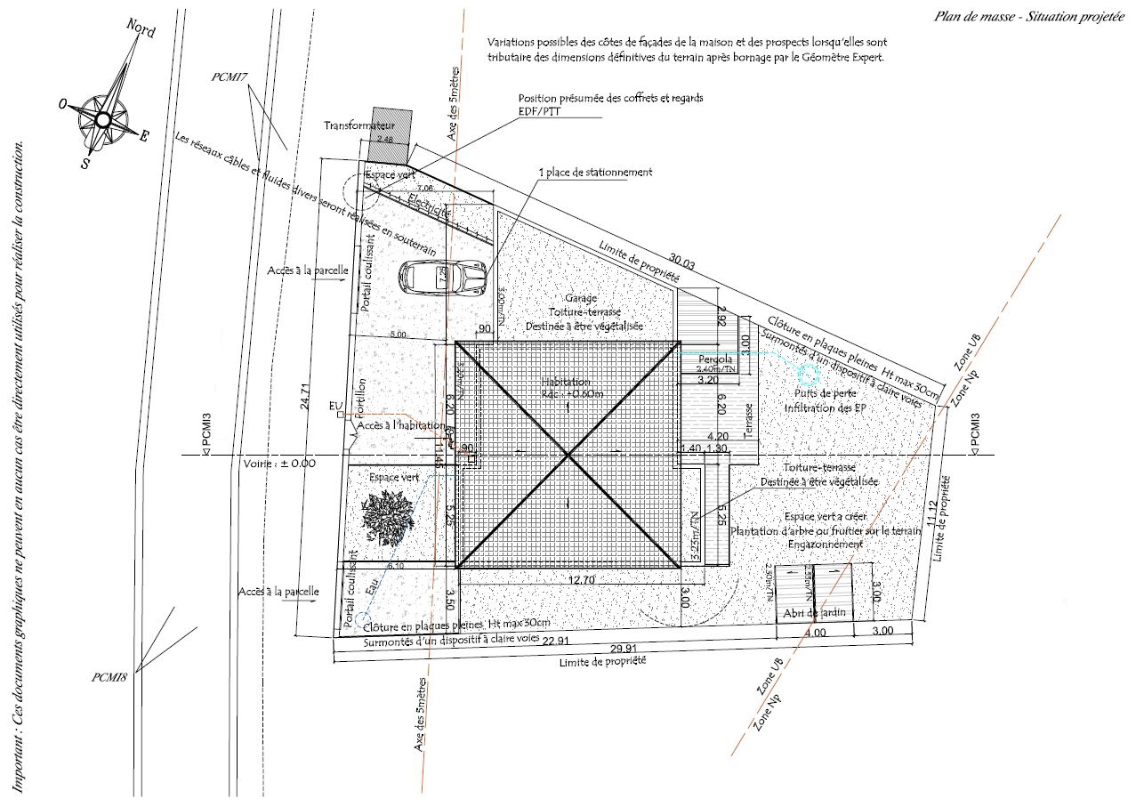
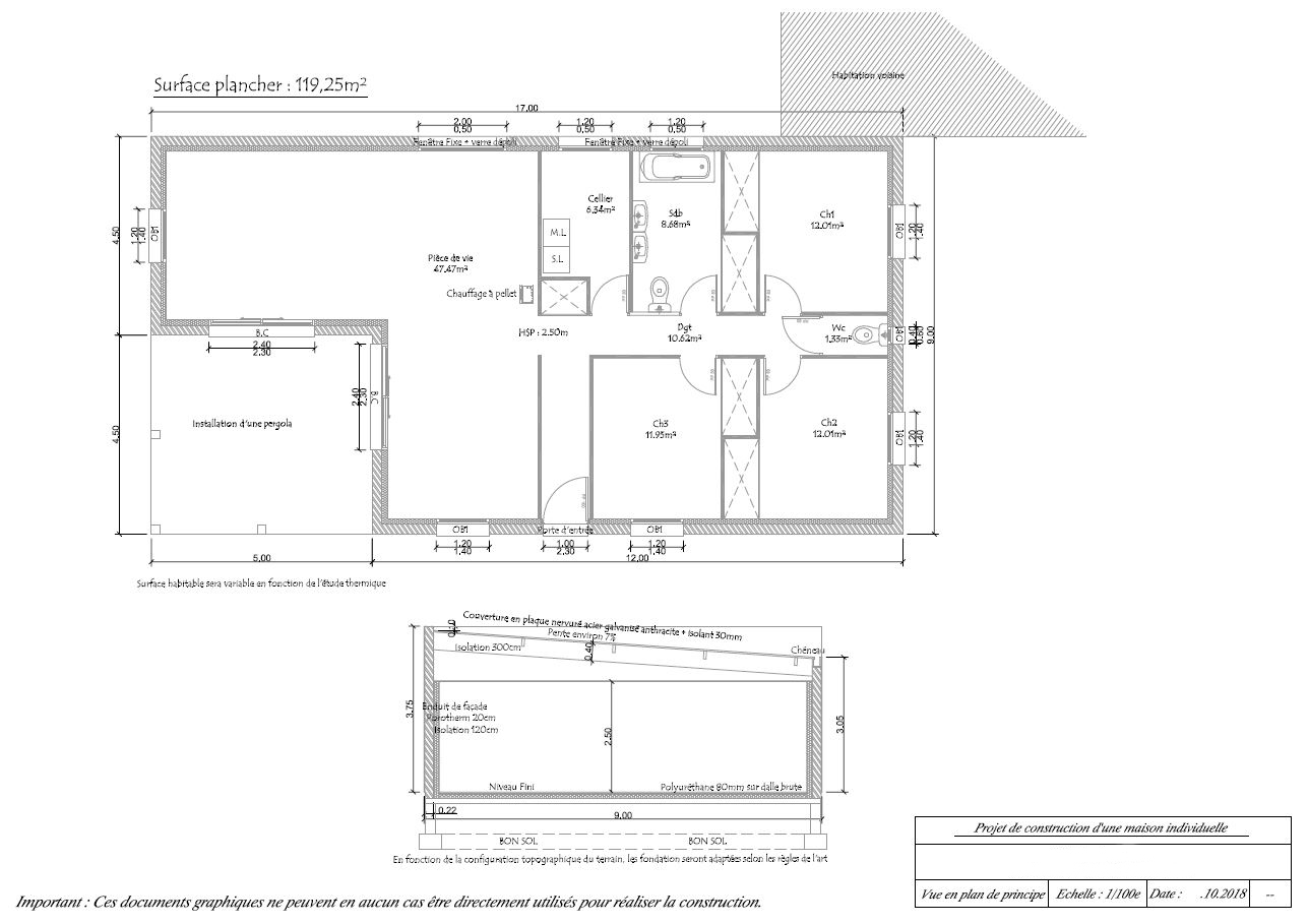
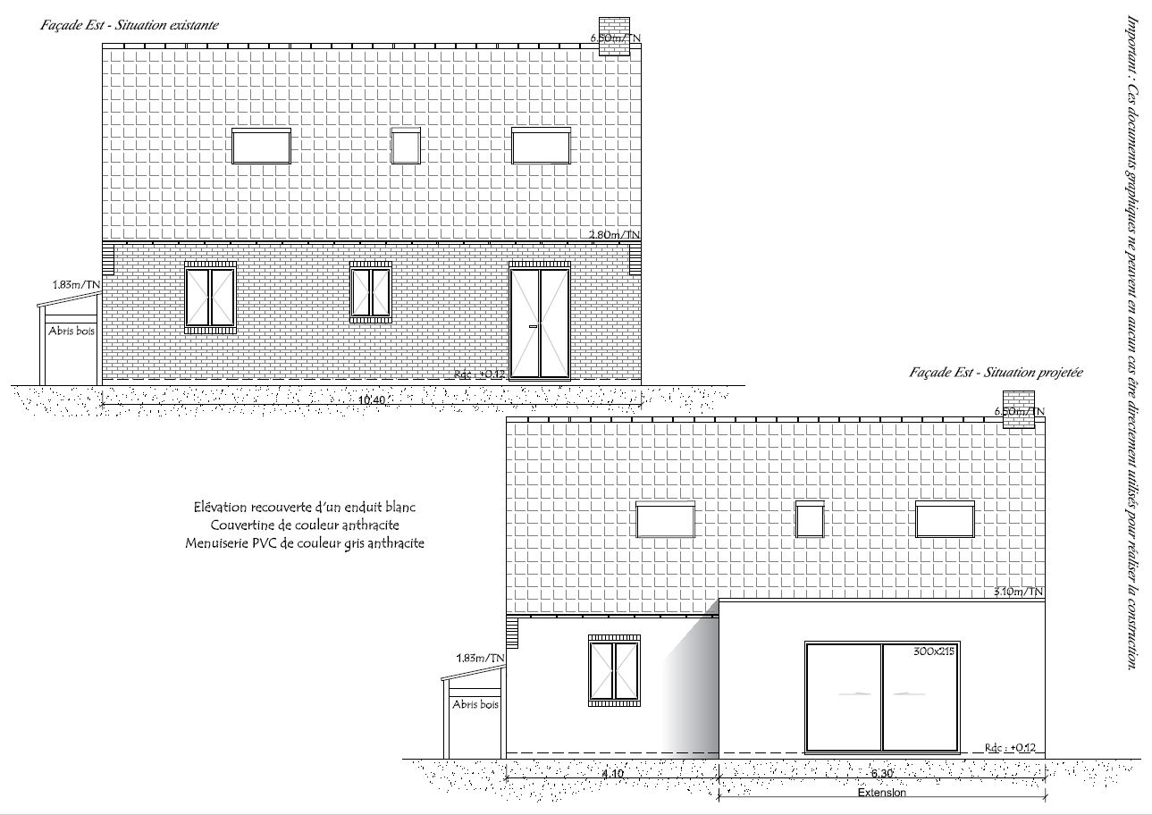
Dessinateur en bâtiment pour vos plans de permis de construire
BESOIN D’AIDE POUR L’OBTENTION D’UN PERMIS DE CONSTRUIRE OU D’UNE DÉCLARATION PRÉALABLE RAPIDEMENT ET FACILEMENT ?
VOTRE DOSSIER ADMINISTRATIF VA DEVENIR UNE SIMPLE FORMALITÉ.
Je suis Dessinateur en Bâtiment membre de la FNDI – Fédération Nationale des Dessinateurs Indépendants et Titulaire d’une assurance responsabilité civile professionnelle et décennale (obligatoire dans le cadre de cette profession)
Basé à Sommaing sur Ecaillon, Struct’O Plans vous assure l’avantage d’un seul interlocuteur pour toutes vos demandes d’étude de projets.
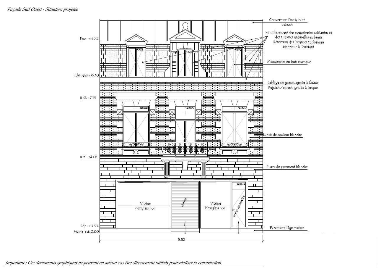
Qu’il s’agisse d’un projet de construction de maison neuve, d’extension, de surélévation, de rénovation, ou encore d’aménagement intérieur, d’abri de jardin, de garage, de véranda, de modification de façades, de clôtures, de piscine…. Struct’O Plans est là pour vous conseiller, vous accompagner, élaborer votre dossier administratif et assurer son suivi jusqu’à son obtention dans le but que votre projet se réalise.
Pour cela, Struct’O Plans s’occupe de tout ce qui va contribuer à l’élaboration de votre projet :
Cette liste est non exhaustive et les prestations sont diverses, telles que :
- – Les plans d’un avant-projets.
- – RDV au service départemental de l’architecture et du patrimoine en secteur protégé pour présentation de l’avant-projet.
- – RDV avec les services instructeurs si nécessaire.
- – Déclaration préalable.
- – Permis de construire.
- – Les pièces manquantes pour l’obtention de votre autorisation de travaux ou permis de construire.
- – Dossier complet en nombres d’exemplaires requis et documents administratifs correspondants.
- – Relevé de bâtiments existants.
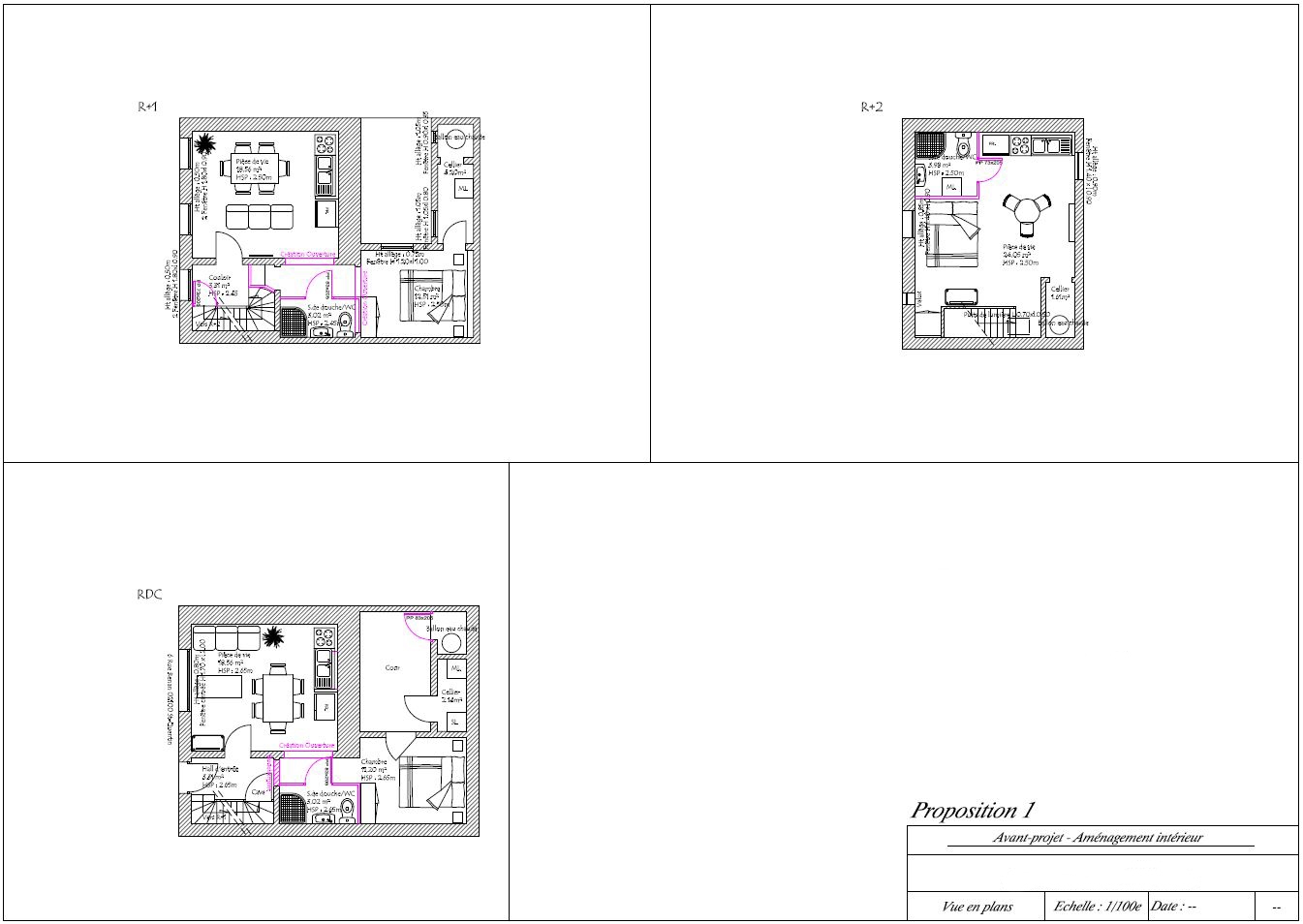
- – Aménagements intérieurs.
- – Réalisation en 3D du projet.
- – Séquence vidéo sur demande.
- – Impressions 3D
- – Les plans en conformité avec les règles locales d’urbanisme et la collaboration avec des bureaux d’études thermiques partenaires permet de fournir l’attestation RT2020 Bbio et DH nécessaire au dépôt du permis de construire.
- – Si vous le souhaitez, mise en relation avec des professionnels du bâtiment
CHAQUE DOSSIER DE PERMIS DE CONSTRUIRE OU DE DÉCLARATION PRÉALABLE RÉALISÉ EST COMPLET ET
PRÊT A ÊTRE DÉPOSÉ EN MAIRIE.
Struct’O Plans se déplace dans les secteurs de Valenciennes, Douai, Lens, Arras, Cambrai, Maubeuge, Le Quesnoy, Lille.
Intervention possible dans le reste de la France par correspondance grâce à la digitalisation.
Struct’O Plans accompagne aussi des professionnels du Bâtiment : Architectes, maîtres d’œuvre, artisans (maçons, charpentiers …). Une collaboration est possible.
Notre engagement : vous garantir un accompagnement personnalisé et professionnel quel que soit votre projet.
Sans plus attendre!! Travaillons ensemble pour maximiser les chances d’acceptation de vos dossiers de permis de construire.

